10 Kratz Dr, Coffs Harbour
A Touch of Class
A rare offering of something timeless, luxurious, built for family living and entertainment. A generous 3,600m2 lot provides complete privacy and enough space to create an exclusive retreat, elegantly landscaped, it's hard to believe that you are still in the centre of town. In addition, the house is absolutely uncompromisingly spacious, and perfect for families with kids of all ages. It's solid two storey presence, with sweeping balconies french doors are reminiscent of American Monterey Architecture. If space, privacy and convenience to town are important, you simply won't find a better example than this.
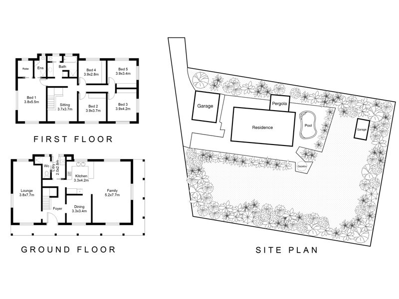
* A magnificent 5 bedroom family home.
* Completely private, on 3,600m2 of land.
* Dress circle location, just 5 minutes from CBD.
* Timeless architecture, elevated landscaped gardens and adjoining reserve.
* 2 storey design comprising 3 living areas and 2 dining areas. (rumpus, formal lounge, open plan living & dining, formal dining).
* In-ground pool with huge undercover entertaining area, adjacent to the kitchen.
* Double garage + separate single garage.
* A rare find for those wanting something private, and unique, yet still handy to town.
Rates: $2,984.21pa (approx.)
| Property Features | |
| Bedrooms | 5 |
| Bathrooms | 3 |
| Garage | 3 |
| Land Size | 3651 m2 |
| Rates | 2984.21 |
| Remote Garage | Yes |
Location Map
Coffs Harbour
Coffs Harbour is located approximately halfway between Sydney and Brisbane, and it prides itself on its many...
Agent Contact Details
Enquire about this property
Please complete the form below.
- Floorplan
- Print Brochure
- Email a Friend
- Vendor Login
More Information
Similar Properties
Address
Features
Method
Price
Agent
Phone
2 & 3/5 Vincent Street, Coffs Harbour
2 Bed | 1 Bath | 1 Car
Sold
Sold for $157,500
NSW Real Estate
(02) 6652 6811
1/6 Toormina Pl, Coffs Harbour
2 Bed | 1 Bath | 1 Car
Sold
Sold
Grant Larsen
0417 263 656
2/3B Gordon St, Coffs Harbour
2 Bed | 1 Bath | 1 Car
Sold
Sold
NSW Real Estate
(02) 6652 6811
5/70 Boultwood Street, Coffs Harbour
2 Bed | 1 Bath | 1 Car
Sold
Sold for $177,000
Sales
(02) 6652 6811